株式会社 友隣 東京都新宿区 高田馬場 不動産売買、賃貸物件、不動産管理、不動産投資専門
 
 
 
物件名 コンシェリア品川南 THE GRAND RESIDENCE 販売価格 5795万1000円
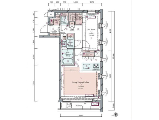
物件所在地 東京都品川区南大井4-12-11 専有面積 1LDK 49.64㎡(壁芯)
交通機関 京急本線「立会川」歩6分

JR京浜東北線「大森」歩14分
バルコニー
面積
4.6㎡
所在階 2階/RC5階建
完成時期
(築年月)
2019年1月
 
 
 ホーム | 会社概要 | 事業内容 | 賃貸物件 | 売買物件 | アクセス | 求人情報 

Copyright(C)2020 株式会社 友隣 All Right Reserved.

当サイト内に掲載されているすべての文章、画像、写真、デザインの無断転載、転用は日本の法律(著作権法)によって禁じられています。